

House Plan Number: BN155
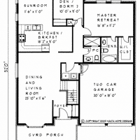
This bungalow house plan has an optional den/ second bedroom and features well divided living zones. A rear sunroom allows plenty of light and a great backyard view. A Front Living room is perfect for relaxing. The master bedroom has an ensuite bathroom and walk-in closet. Laundry facilities are conveniently located on the main floor. A stylish covered front porch and garage adds character to the exterior face.
PRICING PDF: Intended for pricing and viewing full structural details. Not signed and not for construction. May not be updated to the most recent Ontario Building Code changes. Emailed directly to you within 1 business day.
CONSTRUCTION SET: Permit ready Construction Set of signed blueprints. Includes PDF, 6 copies of 24x36 signed blueprints, Signed Schedule 1 Designer Form, and Signed Energy Efficiency Design. Due to yearly updates to the Ontario Building Code, each design has to be checked and updated to current code standards. Please allow up to 2-4 weeks for code update and shipping of the construction blueprints. Includes regular ground shipping with Purolator. Express shipping available at an additional cost.
PERSONALIZE YOUR HOUSE PLAN: Please fill out our GET A QUOTE form, including the house plan number and desired changes and you will be provided with a price within 1-3 business days. Includes PDF, 6 copies of 24x36 signed blueprints, Signed Schedule 1 Designer Form, and Signed Energy Efficiency Design. Personalized House Plans have a longer timeline dependent upon our current workload and the number of changes. Includes regular ground shipping with Purolator. Express shipping available at an additional cost.
- Square Feet: 1386
- Width: 40' 6"
- Depth: 52' 0"
- Bedrooms: 2
- Bathrooms: 1.5
- Garage Bays: 2.0