


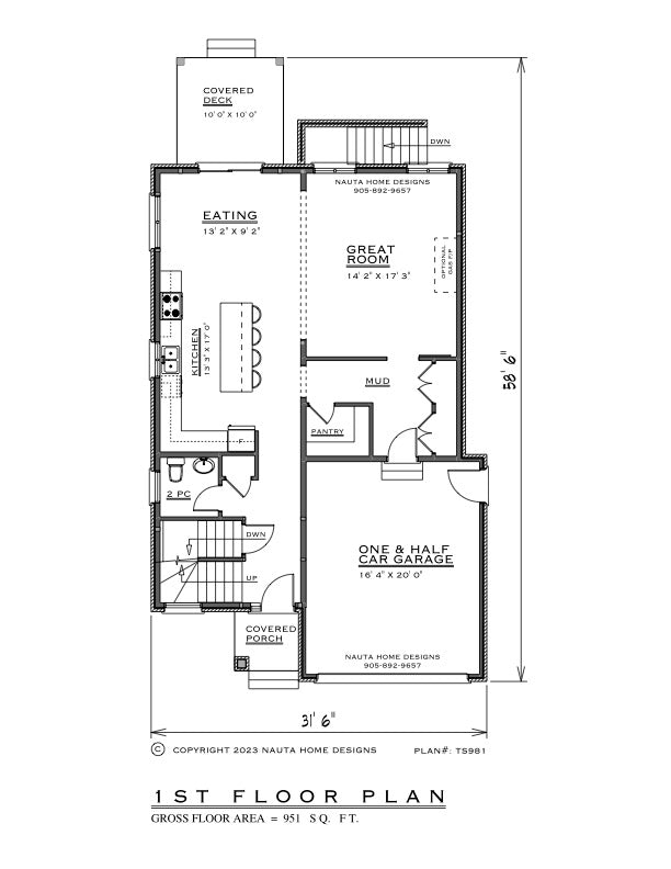
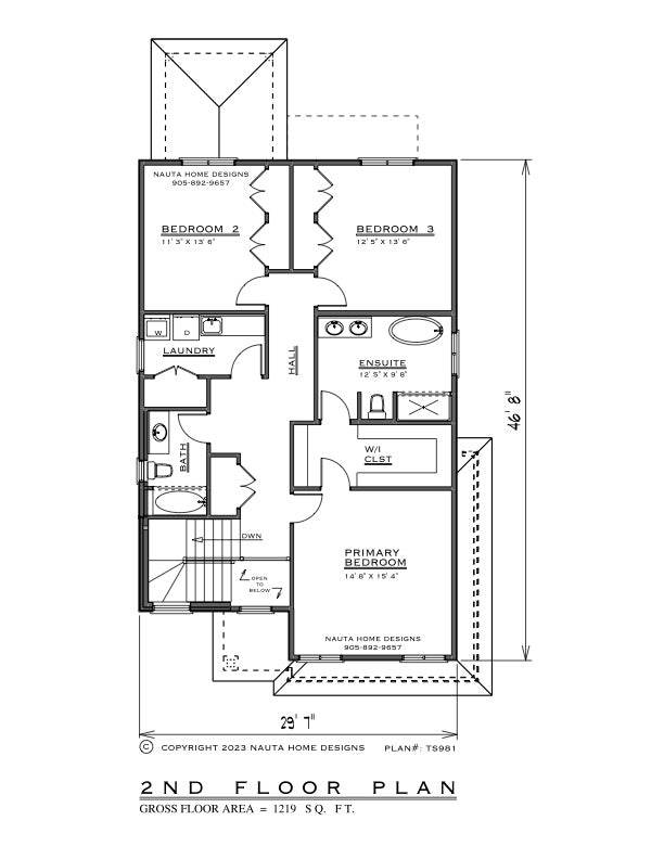
House Plan Number: TS981
TS981 offers a traditional exterior with a spacious interior design. Its fully open concept main floor leads to a covered deck, making it perfect for entertaining. Additionally, the home offers three bedrooms, two and a half bathrooms, and second floor laundry for added convenience. A 1.5 car garage provides extra storage space.
PRICING PDF: Intended for pricing and viewing full structural details. Not signed and not for construction. May not be updated to the most recent Ontario Building Code changes. Emailed directly to you within 1 business day.
CONSTRUCTION SET: Permit ready Construction Set of signed blueprints. Includes PDF, 6 copies of 24x36 signed blueprints, Signed Schedule 1 Designer Form, and Signed Energy Efficiency Design. Due to yearly updates to the Ontario Building Code, each design has to be checked and updated to current code standards. Please allow up to 2-4 weeks for code update and shipping of the construction blueprints. Includes regular ground shipping with Purolator. Express shipping available at an additional cost.
PERSONALIZE YOUR HOUSE PLAN: Please fill out our GET A QUOTE form, including the house plan number and desired changes and you will be provided with a price within 1-3 business days. Includes PDF, 6 copies of 24x36 signed blueprints, Signed Schedule 1 Designer Form, and Signed Energy Efficiency Design. Personalized House Plans have a longer timeline dependent upon our current workload and the number of changes. Includes regular ground shipping with Purolator. Express shipping available at an additional cost.
- Square Feet: 2170
- Width: 31' 6"
- Depth: 58' 6"
- Bedrooms: 3
- Bathrooms: 2.5
- Garage Bays: 1.5
House Plan Pricing
PDF Pricing Plans
$49.99
For pricing and review - not for Permit or construction
Detached Garage Construction Blueprints
$749.99
Designed on standard frost foundation. Engineered slab on grade available and quoted extra. Includes Schedule 1 Form
Residential Construction Blueprints
$1799.99
Does Not Include:
- Engineering
- HVAC Design
- Roof Truss Design
- LVL Engineering
- Any Other 3rd Party Services
Townhouse Designs are for conceptual purposes only and will require a consultation before we can provide a quote.
Personalize An Existing House Plan
Our house and garage plans can be modified. Please fill out our Contact Us Form and specify the House Plan Number and desired changes. We will reply with our quote to revise the house plans. Examples of changes are: